Laboratorium Fisika Dasar
Institut Teknologi Bandung
Menu
Home
Tentang LFD
Profil LFD
Data dan Fakta LFD
Tim Pengelola LFD
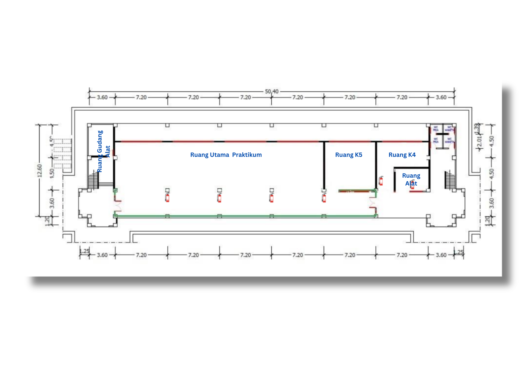
Denah Ruangan
Fasilitas lain
Printer 3D
Seputar Praktikum
Jadwal Praktikum
Jadwal Praktikum Semester Ganjil
Jadwal Praktikum Semester Genap
Aturan dan Alur Kerja Praktikan
Penting : Aturan Praktikum Bagi Praktikan
Alur Kerja Praktikan
Aturan dan Alur Kerja Asistensi
Koordinator Asisten Praktikum
Asisten Laboran
Asisten Praktikum
Buku Saku
Buku Saku Praktikum Semester Ganjil
Buku Saku Praktikum Semester Genap
Tata Cara Pelaporan Izin Praktikum
Modul
Modul Praktikum (Practicum Module)
Handout Modul Praktikum
Modul PBL
Modul Campus Tour 2021
Simulasi Fisika
Pengumuman
Nilai
Berkunjung ke LFD
Denah Ruangan
Labtek 1A Lantai 3
Gedung C Lantai 1